Saffron Walden

Inspiration Saffron Walden

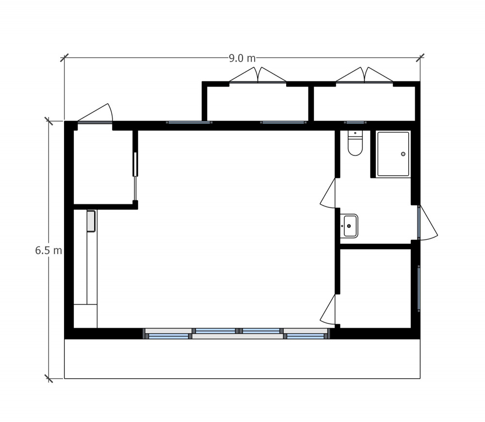
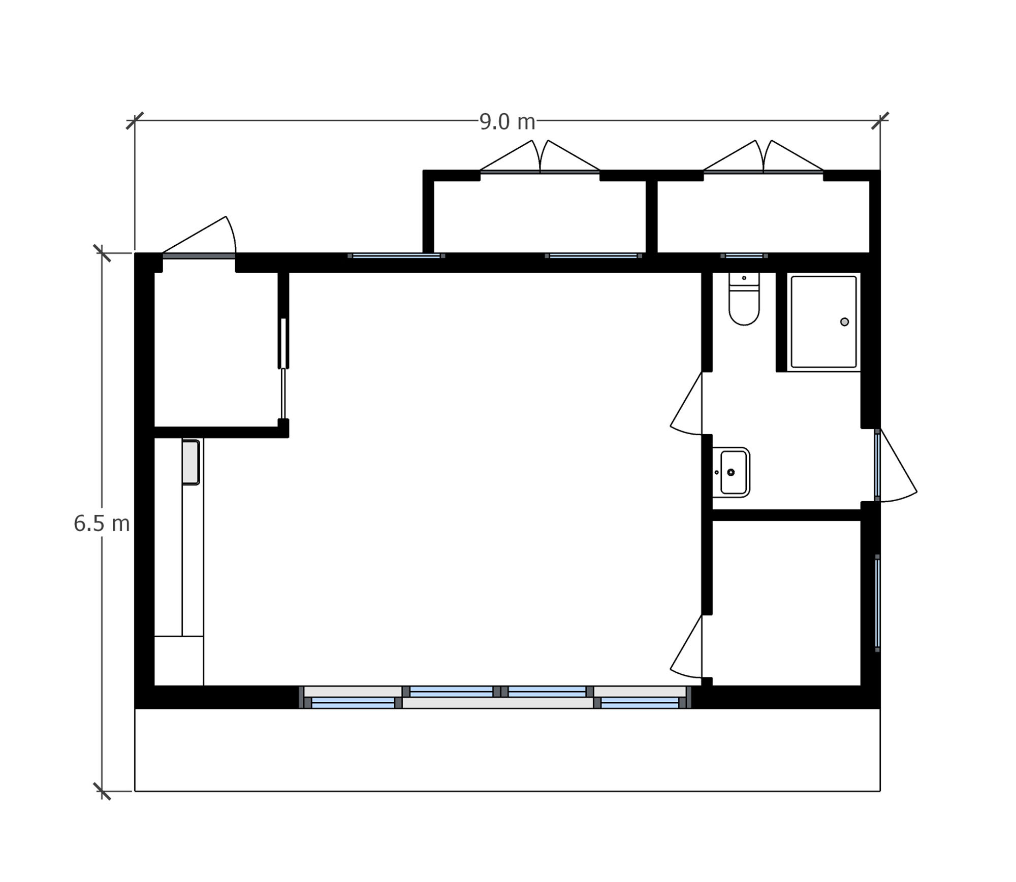
Poolside room in Saffron Walden, Essex

This modern-style poolroom in Saffron Walden is designed to complement the garden layout.

The sliding doors allow the owners to sit indoors but still supervise the kids’ swimming. It’s equipped with a shower room and a kitchen, so that every comfort can be on hand when you’re relaxing by the pool.

The studio is also used as a convenient changing room for the swimming pool, providing space for changing and for the pool play equipment.

Floor plan

Construction photos