West Sussex

Inspiration West Sussex

Hove, West Sussex Contemporary living becomes more stylish with outdoor rooms

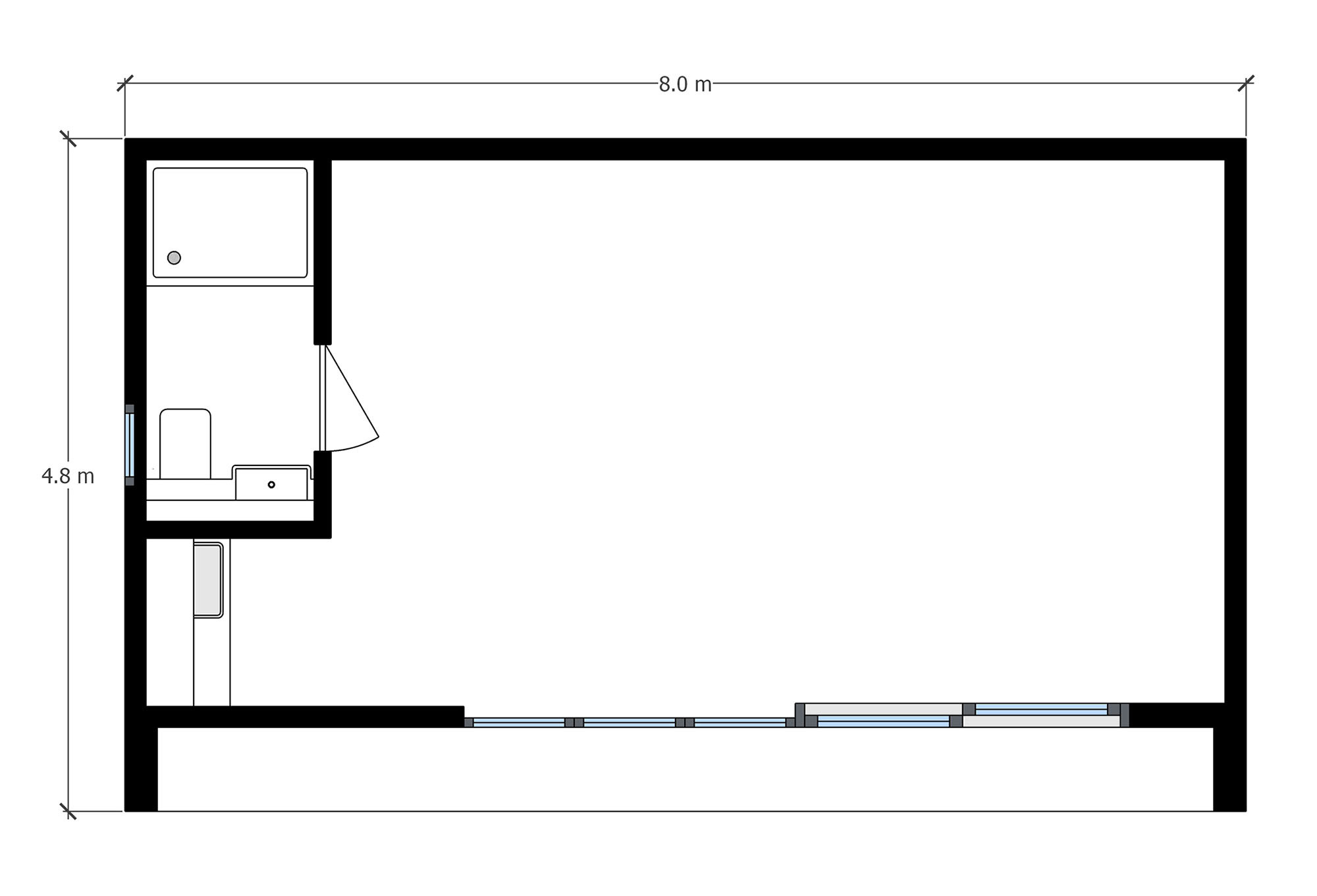
This garden room is incredibly versatile. Not only does it house a home gym and changing room, but it will also turn into a party space, art studio, music room or office pod. It’s a garden retreat, somewhere to enjoy alone or share as you wish.

Floor Plan